NFB fuhrrheydt ParkGate

Toraufbau:
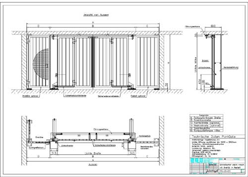
Der Toraufbau ist selbsttragend, so dass das Torgewicht und alle betriebsbedingten auftretenden Kräfte durch radiale/axiale Lager, die auf beiden Torseiten ausgeführt sind, in den Boden eingeleitet werden. Das Gebäude nimmt das Torgewicht nicht auf, sondern das Tor steht selbstragend, durch die Konstruktion. Aus diesem Grunde werden im Torbetrieb so gut wie keine Schwingungen von der Toranlage auf das Gebäude übertragen. Das NFB Fuhrrheydt Schnelllauffalttor / ParkGate verhindert die Problematik von Resonanzschwingungen angrenzender Baukörper durch die selbsttragende Konstruktion. Die selbsttragende Konstruktion besteht aus verzinkten und grundierten Stahlprofilen. Die gesamte lichte Öffnung wird vom ParkGate freigegeben.

Die Antriebe des ParkGates sind in den seitlichen Torrahmen untergebracht und verfügen über Elektro-Bremsmotoren mit angeflanschtem Stirnradgetriebe. Jede Torrahmeneinheit hat eine Revisionsklappe, nach deren Öffnung Motor und Getriebe zu Wartungszwecken zugänglich sind. Darüber hinaus lässt sich die Bremse des Antriebes lüften, damit bei Stromausfall das Tor manuell betätigt werden kann. Die Wartungsklappen sind elektrisch abgesichert, so daß im geöffneten Zustand der Stromkreis unterbrochen ist. Der deckenseitig benötigte Einbauraum der Toranlage beträgt lediglich 60 mm. Hiermit wird sichergestellt, dass das ParkGate auch bei engsten Einbausituationen Platz findet. Das ParkGate verfügt weder über Bodenschiene, die den ein- und ausfahrenden Verkehr der Parkzonen behindern könnte, noch stehen nach dem Einbau Wartungen zur Reinigung und Pflege / Reparatur einer Schiene an. Eine Beheizung dieser zur Absicherung im Winterbetrieb gegen Einfrieren entfällt, da nicht vorhanden.

Zusätzliche Kosten für jedwede Bodenarbeiten entfallen, die mit dem Aushub des Bodens und dem Verguss die Schienen anfangen und mit Installationen und Nacharbeiten enden. Die Basiskonstruktion ist durch ein System von 4 Flügeln gekennzeichnet, bei dem jeweils zwei Flügel nach jeder Seite auffalten, Flügelteilung 2:2. Varianten der Flügelteilung sind in den Ausführungen 2:1 sowie 1:1 möglich. Das ParkGate weist die Besonderheit auf, dass die Flügel unabhängig voneinander, getrennt gesteuert werden können. Das hat den Vorteil, dass jeweils zwei Flügel nach innen und zwei Flügel nach aussen geöffnet werden können. Die Flügel können also für eine Ein-und Ausfahrtstrasse jeweils aus der Bewegungsrichtung des Fahrzeuges geschwenkt werden. Die Faltflügel sind untereinander durch doppelt ausgeführte, dreiteilige Torbänder verbunden. Diese verstärkten Torbänder sind verzinkt und mit axialen und radialen Lagern ausgebildet.

Torfüllung:
Die Torfüllung kann als Gitterkonstruktion ausgeführt werden, so dass die Abgase der Fahrzeuge von innen nach auîen abgeführt werden können. Im Falle eines im Gebäude vorhandenen Belüftungssystems, kann eine Torfüllung auch in vollkommen geschlossener Ausführung erfolgen, in einwandiger, isolierter Version oder in verschiedenen Spezialfüllungen nach Wahl des Kunden. Auf Kundenwunsch wird oftmals ein Lochblech als Füllung eingesetzt, welches hier einfachst seine Anwendung finden kann. In der Standardversion wird eine Gitterfüllung aus Rechteckhohlprofilen eingesetzt, die mit dem Hauptrahmen verschweiît ist. Die Abmessung der quadratischen Füllstäbe ist 30*2mm, diese können ebenfalls in Rundausführung geliefert werden. Die Füllstäbe sind verzinkt und grundiert und haben aus Sicherheitsgründen einen max. lichten Abstand von 120mm. Das ParkGate kann werkseitig in allen RAL Farben ausgeführt werden. Bei Fremdmontagen empfehlen wir jedoch, das ParkGate in verzinkter und grundierter Ausführung zu montieren und die farbliche Endbeschichtung erst auf der Baustelle auszuführen. Transport- und montagebedingte oberflächliche Beschädigungen der Toranlage können so vollständig nach der Montage beseitigt werden, so dass sich durch die Endbeschichtung vor Ort ein perfektes Resultat ergibt.

Motor / Antriebseinheit:
Das ParkGate verfügt über zwei Elektro-Bremsmotoren mit einer Leistung beginnend bei 0.18 KW (nach technischer Anforderung und Torgrösse) Angeflanschte Stirnradgetriebe mit Ausrückmechanismus der Bremse zur manuellen Betätigung der Toranlage.

Geschwindigkeit:
Öffnungs- und Schließgeschwindigkeit 3,5 bis 5 Sekunden

Steuerspannung:
24 Volt / DC

Betriebsspannung:
400V/50Hz

Sicherheitseinrichtungen:
Vertikale elektrische Sicherheitskontaktschienen an den Hauptschließkanten (auch pneumatische Ausführung möglich). 2 Stück horizontale Kontaktschienen am Boden, im Falle, dass eine Quetschgefahr besteht, zwischen Bürgersteig und Tor-Öffnungsweg, Lichtschrankeneinheit in der lichten Toröffnung.

Zusätzliche Einrichtungen:
Bewegungsmelder, Induktionsschleife, Reflexionslichtschranke , Infrarot-Erfassung, Funkfernbedienung, Ampelanlage (als Sicherheitsmaßnahme), Eintrittskontrollsysteme und viele andere mehr.