NFB Fuhrrheydt SpeedGate

Toraufbau:
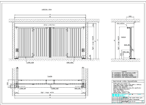
Die Torkonstruktion ist selbsttragend, so dass das Torgewicht und alle betriebsbedingt auftretenden Kräfte durch radiale/axiale Lager, die auf beiden Torseiten ausgeführt sind, in den Boden eingeleitet werden. Das Gebäude nimmt nicht das Torgewicht auf, sondern das Tor steht für sich alleine, durch die Konstruktion. Aus diesem Grunde werden im Torbetrieb so gut wie keine Schwingungen von der Toranlage auf das Gebäude übertragen. Das NFB Fuhrrheydt Schnelllauffalttor / SpeedGate verhindert die Problematik von Resonanzschwingungen angrenzender Baukörper durch die selbsttragende Konstruktion. Die selbsttragende Konstruktion besteht aus verzinkten und grundierten Stahlprofilen. Die Toranlage kann sowohl vor als auch hinter der lichten Öffnung montiert werden. Dies gewährleistet eine hohe passive Sicherheit für die Betriebssicherheit des Tores, weil der Sturz und die Leibung das Antriebssystem sowie die Torlagerungen vor Beschädigungen durch ein- und ausfahrende Fahrzeuge schützen.

Die gesamte lichte Bauöffnung wird vom SpeedGate freigegeben. Die selbsttragende Rahmenkonstruktion trägt die komplette Antriebseinheit, bestehend aus Motor mit angeflanschtem, selbsthemmenden Schneckenradgetriebe sowie Kraftübersetzungen auf die Torflügel und Torlagerungen. An der Unterseite der eingehausten Antriebseinheit ist eine Revisionsklappe angeordnet. Diese kann zu Wartungszwecken und zur Notbetätigung der Toranlage bei Stromausfall geöffnet werden. Die Revisionsklappe ist durch einen Microschalter abgesichert, so dass ein elektrischer Betrieb der Anlage bei geöffneter Revisionsklappe nicht möglich ist. Der Antriebskasten weist eine Bauhöhe von lediglich 250 mm auf und ermöglicht damit den Einbau der Toranlage auch bei beengten Platzverhältnissen. Das SpeedGate verfügt weder über Bodenschiene, die den ein- und ausfahrenden Verkehr der Parkzonen behindern könnte, noch stehen nach dem Einbau Wartungen zur Reinigung und Pflege / Reparatur einer Schiene an. Eine Beheizung dieser zur Absicherung im Winterbetrieb gegen Einfrieren entfällt, da nicht vorhanden. Zusätzliche Kosten für jedwede Bodenarbeiten entfallen, die mit dem Aushub des Bodens und dem Verguss die Schienen anfangen und mit Installationen und Nacharbeiten enden.

Die Basiskonstruktion ist durch ein System von 4 Flügeln gekennzeichnet, bei dem jeweils zwei Flügel nach jeder Seite auffalten, Flügelteilung 2:2. Varianten der Flügelteilung sind in den Ausführungen 2:1 sowie 1:1 möglich. Die Faltflügel sind untereinander jeweils durch doppelt ausgeführte, dreiteilige Torbänder verbunden. Die verstärkten Torbänder sind verzinkt und mit axialen und radialen Lagern ausgebildet.

Torfüllung:
Die Torfüllung kann als Gitterkonstruktion ausgeführt werden, so dass die Abgase der Fahrzeuge von innen nach außen abgeführt werden können. Im Falle eines im Gebäude vorhandenen Belüftungssystems, kann eine Torfüllung auch in vollkommen geschlossener Ausführung erfolgen, in einwandiger, isolierter Version oder in verschiedenen Spezialfüllungen nach Wahl des Kunden. Auf Kundenwunsch wird oftmals ein Lochblech als Füllung eingesetzt, welches hier einfachst seine Anwendung finden kann. In der Standardversion wird eine Gitterfüllung aus Rechteckhohlprofilen eingesetzt, die mit dem Hauptrahmen verschweißt ist. Die Abmessung der quadratischen Füllstäbe ist 30*2mm, diese können ebenfalls in Rundausführung geliefert werden. Die Füllstäbe sind verzinkt und grundiert und haben aus Sicherheitsgründen einen max. lichten Abstand von 120mm. Das SpeedGate kann werkseitig in allen RAL Farben ausgeführt werden. Bei Fremdmontagen empfehlen wir jedoch das ParkGate in verzinkter und grundierter Ausführung zu montieren und die farbliche Endbeschichtung erst auf der Baustelle auszuführen. Transport- und montagebedingte oberflächliche Beschädigungen der Toranlage können so vollständig nach der Montage beseitigt werden, so dass sich durch die Endbeschichtung vor Ort ein perfektes Resultat ergibt.

Motor / Antriebseinheit:
Die elektro-mechanische Toranlage ist mit einem Motor ausgestattet, der entsprechend der Torgröße 0,45 KW bis 1,1 KW leistet. Das angeflanschte, selbsthemmende Schneckenradgetriebe verfügt über einen Ausrückmechanismus zur manuellen Betätigung des Tores.

Geschwindigkeit:
Öffnungs- und Schließgeschwindigkeit 3,5 bis 5 Sekunden

Steuerspannung:
24 Volt / DC

Betriebsspannung:
400V/50Hz

Sicherheitseinrichtungen:
Sicherheitsrutschkupplung, vertikale elektrische Sicherheitskontaktschienen an den Hauptschließkanten (auch pneumatische Ausführung möglich). 2 Stück horizontale Kontaktschienen am Boden, im Falle, dass eine Quetschgefahr besteht, zwischen Bürgersteig und Tor-Öffnungsweg, Lichtschrankeneinheit in der lichten Toröffnung.

Zusätzliche Einrichtungen:
Bewegungsmelder, Induktionsschleife, Reflexionslichtschranke, Infrarot- Erfassung, Funkfernbedienung, Ampelanlage (als Sicherheitsmaßnahme), Eintrittskontrollsysteme und viele andere mehr.

Wartung:
Eine Wartung sollte einmal jährlich durchgeführt werden.